huazhong

双梁门式起重机

您的位置:首页 > 产品中心 > 双梁门式起重机

A型双主梁门式起重机
A型双主梁门式起重机
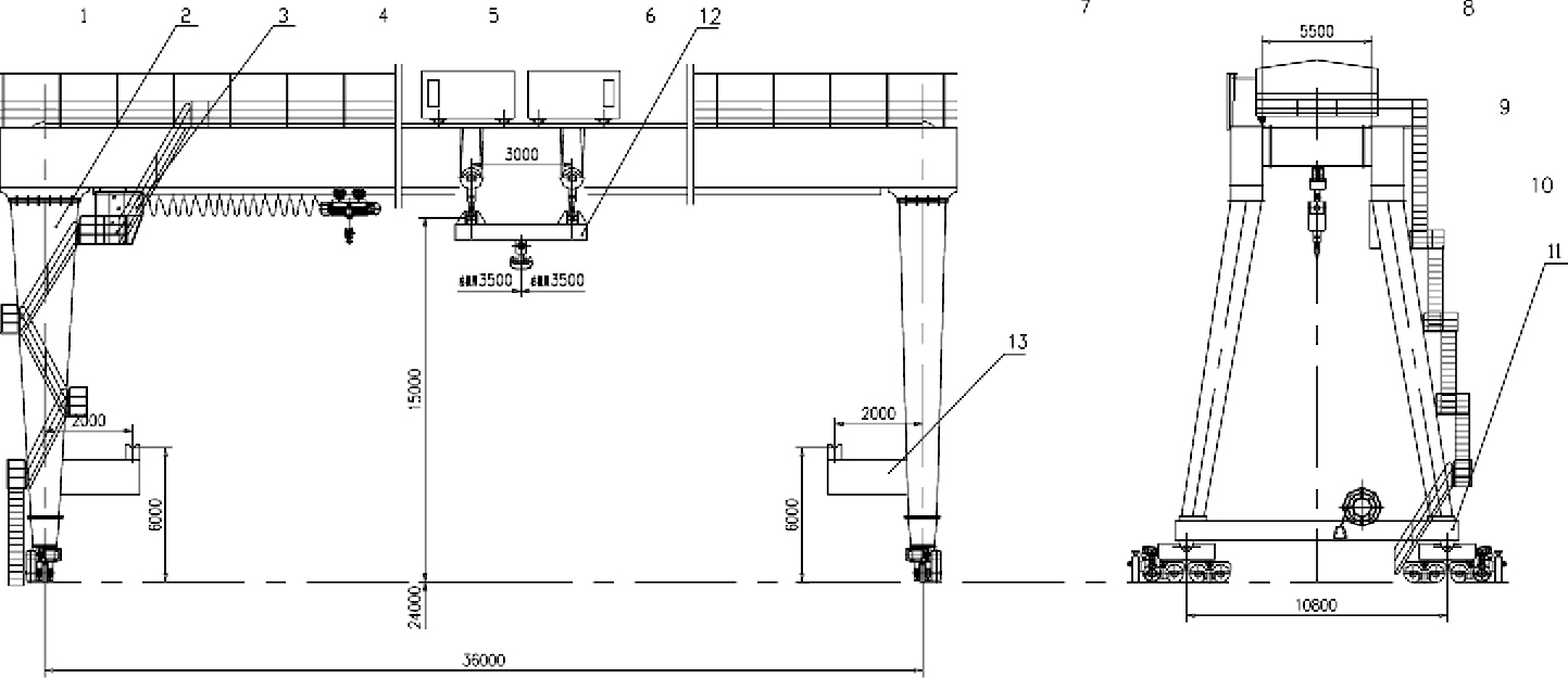
产品简介:A型5~160吨双梁吊钩门式起重机  AType5~160tDoubleBeamHookGantryCrane  A型双主梁吊钩门式起重机适用于露天货场、铁路沿线作业进行一般的装卸及起重搬运工作。A型门架结构,上面带有马鞍结构,受力合理,为国内使用广泛的双主梁门式起重机。根据其结构形式,可分为包厢式...
配套服务:
定制设计
免费上门测量
免费上门安装
24小时销售热线:400-0373-400

详细介绍

1

2

A型5~160吨双梁吊钩门式起重机

  AType5~160tDoubleBeamHookGantryCrane

  A型双主梁吊钩门式起重机适用于露天货场、铁路沿线作业进行一般的装卸及起重搬运工作。A型门架结构,上面带有马鞍结构,受力合理,为国内使用广泛的双主梁门式起重机。根据其结构形式,可分为包厢式MG,额定起重量5~320t;以及减少风阻而设计的桁架式MGH结构,额定起重量为5~160t。


品牌优势

生产设备

相关产品

相关新闻

立即咨询

友情链接:

百度| 百度| 百度|

全国统一服务热线

400-0373-400
  • 28圈
  • 联系人:韩经理 13937336566
  • 电话:400-0373-400
  • 邮箱:hzqzj@163.com
  • 地址:河南省长垣县位庄工业区

扫码关注
版权所有 河南省华中起重机集团有限公司 京ICP证48796266号 
28圈
网站地图