huazhong

双梁桥式起重机

您的位置:首页 > 产品中心 > 双梁桥式起重机

QE型双小车吊钩桥式起重机
QE型双小车吊钩桥式起重机
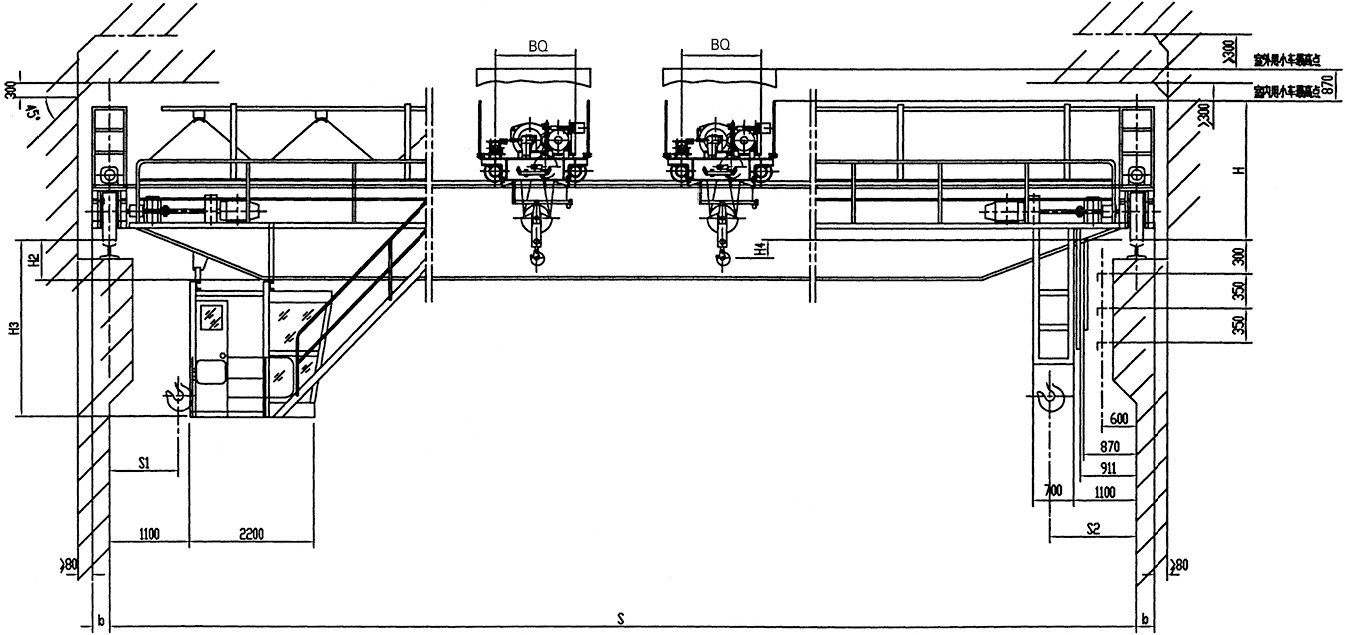
产品简介:  本起重机有两台小车,两小车可以同时使用,也可以单独使用,适用于厂矿企业的车间或露天仓库吊运长件材料(木材,纸筒,管封,棒材)。  Double—trolleyBridgeCrane  Withtwotrolleysthatworkssimultaneouslyorseparately,thisc...
配套服务:
定制设计
免费上门测量
免费上门安装
24小时销售热线:400-0373-400

详细介绍

4

5

  本起重机有两台小车,两小车可以同时使用,也可以单独使用,适用于厂矿企业的车间或露天仓库吊运长件材料(木材,纸筒,管封,棒材)。

  Double—trolleyBridgeCrane

  Withtwotrolleysthatworkssimultaneouslyorseparately,thiscraneissuitabletoliftlongmaterials(wood,papertube,pipeandbar)inworkshopsoroutdoorstoresinfactoriesandmines.

  注:1.大车导电有角钢和安全滑触线两种形式,供选择。

  2.操纵形式有室操(分开式和闭式),地操和遥控三种,供选择。

  Notes:

  1.Powersupplyforthemainvehiclecanbeeitherthroughanglesteelorsafetyslidewire.

  2.Operationcanbedoneinthecabin(open-typeandclosed-type),onthegroundorthroughremotecontrol.


品牌优势

生产设备

相关产品

相关新闻

立即咨询

友情链接:

百度| 百度| 百度|

全国统一服务热线

400-0373-400
  • 28圈
  • 联系人:韩经理 13937336566
  • 电话:400-0373-400
  • 邮箱:hzqzj@163.com
  • 地址:河南省长垣县位庄工业区

扫码关注
版权所有 河南省华中起重机集团有限公司 京ICP证48796266号 
28圈
网站地图